Aller au contenu
  • En ligne récemment   0 membre est en ligne

    • Aucun utilisateur enregistré regarde cette page.

Messages recommandés

Posté(e)

Bonjour à tous,

 

Désolé d'avance pour le pavé, histoire compliquée :AP-Smiles_u1F605:

J'ai acheté il y a 1 an une Audi Q7 4.2 FSI en panne, plusieurs sont passés dessus à se casser les dents. A l'origine, un mec a joué avec la valise et a planté la voiture.

Le dernier propriétaire n'avait pas de valise ni VCDS (en fait il y a de nombreuses pannes) et je tente de la redémarrer depuis 1 an env.

Particularité de la voiture: vendue sur le marché Polynésien (Tahiti), pas de suspension à compresseur, ce sont des suspensions standard, "steel suspensions", donc pas de calculo J197.

 

J'ai pu régler pas mal de soucis:

Je n'avais pas de cranck au démarreur et la voiture faisait sapin de noël au contact, bip et lumières dans tous les sens.

J'ai démonté/remonté le démarreur (un régal !!), il était bon, j'ai quand même remplacé la bobine. Aujourd'hui le démarreur se lance, pas de démarrage.

La baie avant (entre pare brise et moteur) avait pris l'eau, celle qui contient le bloc ABS (HS, je l'ai remplacé, me reste à purger les freins, puis acquitter l'erreur 01486 au redémarrage), la sirène d'alarme (j'en ai une autre d'occase, raccordée en fils volants). J'ai refait une partie du câblage sous la boite a fusible dans cette baie moteur qui avait grillé (j'en avais parlé sur un autre sujet sur ce forum).

L'ancien proprio a fait reprogrammer l'ECU moteur et a viré l'immobilisation (immo off).

je m'aperçois aujourd'hui que bcp de paramètres ont été modifiés par le génie à la valise il y a 2 ans (calculateurs ABS sur le mauvais moteur, module Confort avec suspensions compresseur, etc j'ai remis de l'ordre et corrigé quelques codes erreurs latents)

 

Ci joint le log au VCDS à ce jour. Les erreurs restant à résoudre:

  • 01826 - Transmetteur d´angle de braquage (G85):alim. en courant borne 30 (voir photo voyants tableau de bord ci joints, ABS, EPC, etc c'est lié je pense)
  • Adresse 07: Affichage/Cmde  // 00003 - Calculateur //   005 - Réglage de base / adaptation inexistant ou erroné (ce qui m'inquiète le plus):
    • canal 11: Additional MMI options: il était à 35, incohérent en hexa, j'ai remis à 36.
    • canal 06: MMI after-Run Time: il était à 16, j'ai mis à 0 (il y a un téléphone dans la voiture mais le combiné est perdu)
    • canal 18: je ne sais pas a quoi il correspond, aucune description, il était à 65535, j'ai mis à 0. Si quelqu'un en sait plus ?
    • Le tout sans effet, calculo HS ?
  • 02261 - Support de données (R118) (on s'en fiche non ?)
  • 01699 - Moteur de verrouillage central du hayon (V53) - Moteur à remplacer peut être, on verra plus tard, les pièces mettent 1 mois à arriver ici.

 

J'ai fait un test "BUS OPTIQUE": tout est OK.

 

Une de ces erreurs peut elle empêcher le démarrage ?
Avez vous des pistes pour les corriger ?

Quelles sont les pannes qui empêchent le démarrage n'indiquant aucun code erreur ? (capteur d'arbre à cames il parait, d'autres ?)

 

Je ne sais pas comment tester mes bougies et mes injecteurs (moins faciles d'accès). S'ils étaient mauvais, j'aurais une erreur non ?

L'essence arrive sur les raccord hauts du moteurs, et ça sent bien l'essence quand je tente un démarrage. Peut on vérifier la pression sur les pompes sans démarrer avec VCDS ?

NB: J'ai purgé mon essence et remis de la neuve récemment.

 

Un grand merci à ceux qui m'ont lu et qui pourront m'aider.

Bonne semaine à tous.

 

Philippe

 

20240817_162416.jpg

20240817_163246.jpg

20240817_172140.jpg

20240818_160955.jpg

20240818_161114.jpg

Logs 18 Aout 2024.txt

Posté(e)

Hello

Un simple test déjà pour savoir si tu as as  de l'allumage serait de pulvériser du start pilot dans l'admission. S'il démarre un instant ça voudra dire que l'essence n'arrive pas jusque dans le cylindre (pompe  filtre , injecteur , commande  etc ...)

S'il ne démarre pas ---> pas d'étincelle pourquoi ? (calculateur  ?  capteur  ? normalement non tu devrais remonter un défaut . Distri décalée ...)

Les erreurs qui remontent ne devraient pas empêcher le démarrage. Si la clé n'était pas reconnue il démarrerait et calerait de suite .

Tu peux mesurer les pressions avec VCDS dans le module moteur 01 ==> mesures avancées .Je ne connais pas spécialement ce moteur ce sont dejà quelques pistes pour peut-etre cerner le pb.

A+

  • Aime 1
Posté(e)

Salut Dan,

 

Merci pour ta réponse.

Aucun changement avec du start pilot.

Ci joint une vidéo avec les pressions mesurées sur l'essence. ça me parait normal, si j'interprète ça correctement...

Une consigne à 50 bars sur la Basse pression à priori, bien suivie au démarrage (oscille entre 50 et 60 env).

Et une Haute pression à 125 bars (monte jusqu'à 180 sur d'autres tests).

NB: les relais 1 et 2 de démarrage sont ok (2eme video).

 

 

Posté(e)

Bon déjà s'il ne démarre pas avec du Start pilot c'est qu'il n'y a pas d'allumage ça c'est sûr. Peut-être pas d'injection non plus d'ailleurs suivant la panne. En tous cas la pression d'essence est présente dans le rail.

Peux-tu voir le régime moteur dans les mesures avancées du module moteur 01  quand tu essayes de démarrer ?

Sinon je viens de voir qu'un immo OFF a été fait. Est-ce que cette voiture tu l'a déjà entendu tourner au moins depuis que tu l'as ?

Et si oui est-elle tombée en panne en roulant ou ne demarre-t-elle plus du jour au lendemain ?

A+

 

  • Aime 1
Posté(e)

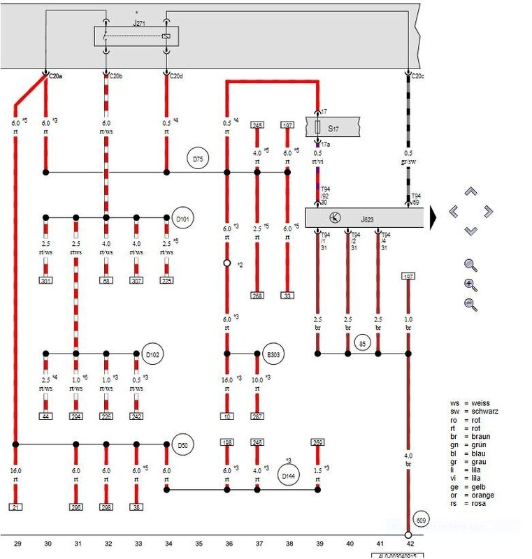
Aussi désolé c'est en allemand.

Contrôle tous les fusibles dans le boitier de la photo j271 ainsi que le relai C2 dans ce boitier.

Tu  démontes  le capot du relai C2 et tu le forces à la main pendant que tu démarres .

Les autres schémas sont un des 2 bancs injecteurs et 1 des 2 bans bobines allumage.

Ton niveau "électricité/ electronique" ? 

 

J271.JPG

ECU_1.JPG

ECU_2.JPG

Ec u_3.JPG

Ecu_4.JPG

  • Aime 1
Posté(e)
Il y a 3 heures, Panda_67 a dit :

Bon déjà s'il ne démarre pas avec du Start pilot c'est qu'il n'y a pas d'allumage ça c'est sûr. Peut-être pas d'injection non plus d'ailleurs suivant la panne. En tous cas la pression d'essence est présente dans le rail.

Peux-tu voir le régime moteur dans les mesures avancées du module moteur 01  quand tu essayes de démarrer ?

Sinon je viens de voir qu'un immo OFF a été fait. Est-ce que cette voiture tu l'a déjà entendu tourner au moins depuis que tu l'as ?

Et si oui est-elle tombée en panne en roulant ou ne demarre-t-elle plus du jour au lendemain ?

A+

 

Merci.

Je vois ce soir pour Le régime moteur...

Je ne l'ai jamais entendue tourner, achetée en panne. Un ancien proprietaire a planté la voiture en jouant avec sa valise (du jour au lendemain donc, il y a 2 ans env), puis un autre propriétaire à tenté l'immo off dans un second temps, il y a 1 an.

Posté(e)
Il y a 1 heure, Panda_67 a dit :

Aussi désolé c'est en allemand.

Contrôle tous les fusibles dans le boitier de la photo j271 ainsi que le relai C2 dans ce boitier.

Tu  démontes  le capot du relai C2 et tu le forces à la main pendant que tu démarres .

Les autres schémas sont un des 2 bancs injecteurs et 1 des 2 bans bobines allumage.

Ton niveau "électricité/ electronique" ? 

 

J271.JPG

ECU_1.JPG

ECU_2.JPG

Ec u_3.JPG

Ecu_4.JPG

 

OK pour forcer C2 (shunt c20a et c20b) et tester les fusibles (j'avais déjà fait tout ça de mémoire, sans pour autant forcer C2), je vois ça ce soir et reviens vers toi.

 

Bon niveau en électricité, (moins en électronique 😅, mais je devrais comprendre).

Faut tester aux bornes de chaque élément si du courant arrives j'imagine. Je te dirai.

Posté(e)

Salut Dan,

 

La magie s'est opérée, elle démarre !! :AP-Smiles_35:

J'ai testé le relais C2, aucun changement, puis vérifié les fusibles. Il y avait des traces de vert de gris sur les broches, j'ai remplacés ceux que j'avais en spare.

J'étais sur le point de tester les tensions sur les bobines d'allumage, et magie, elle a démarré (même sur 1 seule rampe d'allumage). Donc ça devait être un fusible qui ne faisait pas bien contact sur ses broches... 

J'avais déjà contrôlé ces fusibles et appliqué de la bombe contact il y 6 mois, mais apparemment ce n'était pas suffisant (ou mes codages récents m'ont permis d'autoriser le démarrage, ce qui n'était peut être pas le cas à l'époque...)

 

Bref, trop heureux, un grand merci à toi qui m'as mis sur la bonne piste !

C'est une grande avancée dans ce projet.

 

Maintenant j'ai de nouveaux codes défauts, voir Logs en PJ.

En résumé:

 

Moteur:

008852 - Vanne de régulation de pression de carburant (N276) Coupure 

004763 - Soupape de régulation de pression carburant; Banc 2 (N276
001112 - Soupape de dégazage du réservoir (N80) c.c. à la masse 
005173 - Relais de pompe à air secondaire (J299) c.c. à la masse 
000258 - Débitmètre d´air massique (G70) Signal trop faible 
000268 - Débitmètre d´air massique (G246) Signal trop faible 
008196 - Volet de tub. d'adm. pour cde du flux d'air; banc 1 
008197 - Volet de tub. d'adm. pour cde du flux d'air; banc 2 
000048 - Banc 1-sonde 1 circuit électrique de chauffage Coupure 
000080 - Banc 2-sonde 1 circuit électrique de chauffage Défaut électrique 
000054 - Banc 1-sonde 2 circuit électrique de chauffage Coupure 
 

Boite auto:

01314 - calculateur moteur //  013 - Lire la mémoire de défauts

 

Régul. batterie :

02254 - Interface vers l´alternateur
03041 - Gestion d'énergie active 
 

Je vais potasser tout ça dans les jours qui viennent, mais si Dan (ou d'autres) ont de quoi me faire gagner du temps, je suis preneur...

 

Excellente journée

Philippe

 

20240820_170503.jpg

20240820_171834.jpg

Log-20AOUT2024-WAUZZZ4L08D045446-150700km.txt

Posté(e)

Non il n'y a pas forcement une tension au moment ou tu vas contrôler, teste juste les fusibles à l'ohmmetre en les sortant au fur et a mesure.

Si tu as déjà  shunter C20a et C20b ca ne servira à rien de forcer. Par contre mesure la tension à l'entrée C20a quand même. (12v avec contact mis).

 

    

Posté(e)

Nos messages se sont croisés super content pour toi. Comme quoi faut toujours commencer par les choses simples :) . Pour le reste  déjà vérifier connexions fusibles faisceau dans un premier temps. 

A+  

  • Aime 1
Posté(e)

Régul. batterie :

02254 - Interface vers l´alternateur
03041 - Gestion d'énergie active 

 

Peut-être déjà par le plus simple ? La batterie a été changée mais pas recodée ? Il y a plein de tuto sur le net . 

Tiens nous au courant de tes investigations parce que dépanner une Audi qui est à 10 000kms c'est pas simple ;)

 

A+

  • Aime 1
Posté(e)
Il y a 8 heures, Panda_67 a dit :

Régul. batterie :

02254 - Interface vers l´alternateur
03041 - Gestion d'énergie active 

 

Peut-être déjà par le plus simple ? La batterie a été changée mais pas recodée ? Il y a plein de tuto sur le net . 

Tiens nous au courant de tes investigations parce que dépanner une Audi qui est à 10 000kms c'est pas simple ;)

 

A+

Je reviendrai dans quelques jours avec plus de nouvelles... Le temps de chercher.

La batterie a été remplacé par une noname Celle ci: 

Elle a subi bcp de recharges au chargeur, pas certain qu'elle soit en forme...

 

Merci encore Dan, bonne soirée 

Posté(e)

Des nouvelles:

Les codes moteurs sont résolus pour la plupart, des mauvais contacts sur les fusibles et relais, une fois de plus. Tant mieux, c'était facile à trouver et corriger.

 

Il me reste ce code sur le moteur (j'ai pas encore cherché, peut etre encore un fusible...):

000054 - Banc 1-sonde 2 circuit électrique de chauffage Coupure                

J'ai aussi le code moteur sur les volets d'admission 008196, la pièce est cassée (G336), je l'ai rafistolée avec un colson, ça fonctionne à peu près, le temps de poursuivre mon dépannage. Le code revient de temps en temps car me petit moteur ne revient pas completement en position, à cause du colson. Bref, je vais en commander un, 500$ de ce que j'en ai vu 😬 (079129086B). Personne n'en a un d'occase dans un fond de tiroir ?

Photo et vidéo en PJ pour info.

 

J'ai toujours les erreurs sur le regulateur de batterie (à creuser, j'espère ne pas avoir à remplacer l'alternateur, je l'ai déjà fait, c'est pas facile d'accès).

Et les autres codes très secondaires, je verrai avec le temps.

 

Il me restera à remplacer les 4 pneus, faire des tests en roulant (surement d'autres pannes à venir au roulage), puis les vidanges et filtres, et on devrait être bien 😁

A suivre...

 

Bonne journée à tous.

 

20240821_172542.jpg

20240821_171809.jpg

Posté(e)

Hello  ça avance rapidement après 1 an de sommeil , tu es motivé à ce que je vois ;)

Pour le défaut 54 surement sonde lambda (partie chauffage à froid ) a vérifier . Tu peux les croiser pour voir si l'erreur suit.

Pour l'alternateur mesurer la tension moteur à l'arrêt (environ 12v)  et moteur en marche (environ 14V pour voir s'il charge (Aux bornes de la batterie)

A+

  • Merci 1
Posté(e)

Oui, je n'y ai pas touché pdt 6 mois, jusqu'à mon message au dessus... Le fait qu'elle ait démarré m'a remotivé.

Bonne idée de les croiser, j'essaierai 👍

 

Pour les tensions, j'ai remis aux paramètres d'usine, cf canal 00.

Puis regardé les mesures avancées du système batterie/alternateur. Ça parait correct, hormis ce statut "pas en ordre" sur l'interface de l'alternateur (son régulateur je suppose). Je sais pas trop quoi en penser...

NB: le codage batterie pourrait aussi être la cause (pas une BEM).

 

Ce soir j'ai rhabille les portes, j'avais tout démonté. Le rétro droit ne se rabbat pas 😒. On verra après.

20240821_191737.jpg

20240821_191653.jpg

20240821_191244.jpg

20240821_191322.jpg

20240821_191343.jpg

Posté(e)

Hello une piste peut-être pour occuper ton WE ;)

L'unité de contrôle de la batterie surveille la batterie en permanence, elle communique également en permanence avec l'alternateur (via un calculateur intégré dans le régulateur sur  l'alternateur).

Dès que le contrôleur fournit des valeurs peu plausibles ou aucune valeur du tout, le calculateur de batterie ne sait pas si et dans quelle mesure la batterie est chargée pendant la conduite.

Il  commence à désactiver peu à peu  les consommateurs de confort tels que  l'ESP, le chauffage d'appoint etc ... 

Dès que ceux-ci sont désactivés, les messages d'erreur apparaissent. Ou Alors liaison coupée alternateur / boitier contrôle batterie ?.

A creuser donc régulateur alt.  ou liaison calculateur  ou ?...

 

A+

  • Aime 1
Posté(e)

Intéressant, merci 👍

Je creuserai de ce côté là.

 

Hier en voulant purger mes freins, j'ai confondu le bol de DA avec celui des freins (quel âne 😅). Bref, je suis bon pour une vidange liquide DA, et re-refaire ma purge de frein... pas de démarrage en attendant que je règle ça (pour ne pas flinguer la pompe DA).

 

Sinon, d'autres sujets mineurs, les moteurs d'assistance à l'ouverture ou fermeture du coffre ne fonctionnent pas (le bouton sur la malle pour fermer est allumé mais ne réagit pas non plus).

Le coffre se verrouille bien néanmoins.

 

Et pas de centralisation depuis la clé (elle doit être HS,  je la demonterai).

 

Merci pour ton suivi, ça me fait plaisir que quelqu'un me soutienne.

 

Excellent week-end. 

Philippe

 

 

 

Posté(e)

La centralisation avec la clé refonctionne, j'ai démonté la clé, nettoyé à la bombe contact et ça fonctionne, un problème de moins.

 

Pour cette erreur, c'était un CD rayé dans le chargeur.

02261 - Support de données (R118) 
            014 - Défectueux/défectueuse(s)
 

 

Posté(e) (modifié)

Des nouvelles...

 

FREINS:

J'ai pu me débarrasser du code 01826 - Transmetteur d´angle de braquage (G85):alim. en courant borne 30.

Je suis allé dans le menu VCDS Frein (03), puis security access (il m'a donné un code que j'ai tapé et validé), puis je suis retourné dans basic setting et réglé G85. Avant il était tout rouge, aucun signal), donc apparemment passer par le "security access" l'a débloqué. Bizarre... c'est comme ça.

 

J'ai toujours ce code 01486 - Test de fonctionnement du système activé mais apparemment il suffit de rouler avec, voir cette video: https://www.youtube.com/watch?time_continue=148&v=7AVPRj2BNuc&embeds_referring_euri=https%3A%2F%2Fwww.bing.com%2F&embeds_referring_origin=https%3A%2F%2Fwww.bing.com&source_ve_path=MTM5MTE3LDM2ODQyLDM2ODQyLDM2ODQyLDM2ODQyLDM2ODQyLDM2ODQyLDEzOTExNywyMzg1MQ

 

MOTEUR

J'ai pu me débarrasser du code 00054 à propos de la sonde lambda. La prise est cassée (située sous le vase d'expansion LDR). Je l'ai rafistolée avec des colson (on répare tout avec ça ! AP-Smiles_u1F60A.png).

NB: Les 2 prises noires = Bank1 (côté droit sauf erreur)

Les 2 prises marron = bank 2 côté gauche).

La prise avec 4 fils = Sonde après cata (sonde 2), l'autre avec 5 ou 6 fils avant catalyseur (sonde 1).

 

Aux bornes des résistances, les 2 fils blancs, on mesure env. 9 ou 10 ohms.

Voir cette vidéo qui explique bien: Causes and Fixes P0036 Code: HO2S Heater Control Circuit (Bank 1 Sensor 2) - YouTube

 

 

Il me restera le moteur de volets d'admission d'air à remplacer (ou réparer).

 

BOITE:

J'ai vu passer un défaut 17105 (G195) à la première lecture au démarrage ce soir, que j'ai effacé. On verra si ça revient.

La marche arrière fonctionne bien, j'ai fait mes premières 2 mètres dans le garage.
Par contre en marche avant, en mode D, ça n'accroche pas, j'accélère et elle bouge pas, comme au point mort.

En mode S, j'accélère et elle accroche (comprendre le moteur entraine la voiture) avec un peu de régime.

Bref, je mets ça sur le compte d'une huile de boite fatiguée pour le moment et je verrai après avoir vidangé (matériel commandé, patience...).

Vos commentaires/expériences sur le sujet sont les bienvenus (en espérant ne pas avoir un pb d'embrayage)

 

J'ai une fuite de LDR au dessus de la BVA, quelqu'un a une idée ?

Bonne journée à tous.

 

image.jpeg

Log-29AOUT2024-WAUZZZ4L08D045446.txt

Modifié par filoutube
Correction
Posté(e)

il doit y avoir une vanne PCV dans le V du moteur comme pour les TDI et TFSI je suppose et elle doit fuir.

Ca génère souvent des problème de contact sur le faisceau électrique de BVA ce qui expliquerait le comportement erratique de celle-ci pour toi

De mon coté elle se mettait parfois en sécurité, les lumières du selecteur se s'allumaient pas toutes et ça me bloquait le S&S (pas un sujet pour toi concernant le dernier point)

 

Deux posts ci-dessous qui pourront t'aider

 

 

 

  • Aime 1
  • 1 mois plus tard...
Posté(e)

Hello,

 

Quelques nouvelles...

La fuite de LDR s'avère être une fuite de DA. Entre la pompe et le carter. Le liquide de frein que j'ai mis dans le bol de DA m'a flingué le joint... Bref, le constat est fait, reste a commander le joint 6 et le petit arbre 5 (il parait qu'il faut le remplacer aussi).

J'hésite à commander tous les joints du système DA...

image.png.b29bb3c35f0c731c9c2dc34f9764c168.png

 

J'ai fait les vidanges BVA, ponts AV AR, et Boite de transfert.

Lors de la vidange BVA, je n'ai remis que 6,5L. d'huile env. A savoir 4,5 litres avant premier débordement, et 2 litres supplémentaires après monter en température à 39°C. Il me semblait qu'on mettait 9 litres lors d'une vidange BVA (boite 09D)...

Toujours le problème de marche avant sur D qui n'accroche pas et cette erreur G195 (capteur vitesse sortie BVA ref 09D927321B ). La vidange n'a eu aucun effet. Donc je vais commander ce capteur et refaire une vidange.

 

L'erreur VCDS:

17105 - Transmetteur de régime en sortie de boîte (G195) Signal implausible 
            P0721 - 008 -  - Intermittent - Témoin allumé

image.png.f9cc1a6c4f46340d6bfd7f53ae6af0c6.png

 

A+

 

 

Posté(e)

Hello,

 

J'ai testé aux bornes de G195, sur la prise côté boite, j'ai 0,9 Mogms (je devrais avoir 5 ohms env) -> Capteur G195 HS.  Commandé,  j'attends la pièce (2 semaines env.).

NB: à priori la marche arrière nutilise pas ce G195, puisqu'elle fonctionne bien.

 

Autre symptôme:

Je démarre, je recule sur R, RAS, c'est bon,  ça recule.

Je passe en D ou S, j'accélère dans le vide, ça n'avance pas. Cf, G195 pas reconnu, normal.

Après quelques secondes, en insistant, le TCM passe en mode dégradé et bascule sur le capteur de vitesse ABS. La voiture avance.

Problème, elle passe direct en 5eme, pas de 1ere, 2nde, 3eme ni 4eme (rien non plus en manuel/séquentiel).

Je pense que j'ai un soucis aussi sur l'electrovanne N92 (coincée en position "ON").

J'ai mesuré 5,1 ohms à ses bornes, donc électriquement elle parait OK.

 

Screenshot_20241012_133905_AdobeAcrobat.thumb.jpg.cc9ed1ed2c96aa13e3ff3b35a16a26cb.jpg

Screenshot_20241012_133946_AdobeAcrobat.thumb.jpg.cec9046fc6a6741ec3eb884525969811.jpg

Screenshot_20241012_133927_AdobeAcrobat.jpg.5bb508f388ee522e942b59b5dddb3697.jpg

 

A+

 

 

  • 1 mois plus tard...
Posté(e)

Salut,

 

Quelques nouvelles... J'ai reçu mon nouveau capteur G195.

Selon la doc, on doit mesurer 5 Mohm à ses bornes, pas 5 ohms 🤦‍♂️.

Sur l'ancien j'ai 0.9 Mohms (je pensais qu'il était HS), mais j'ai aussi 0,9 Mohms sur le nouveau. Je vais donc morienter sur le câblage et la prise.

 

Après l'avoir remplacé, toujours là-même erreur 17105 donc.

17105 - Transmetteur de régime en sortie de boîte (G195) Signal implausible

 

En effectuant son remplacement, j'ai trouvé de la limaille au dessus du bloc d'electrovannes, en relativement grande quantité,  donc ça pue un peu... 😬

 

J'ai tout nettoyé, tout les morceaux du bloc electrovanne y sont passés, rien trouvé d'anormal (mesures electrovannes ok électriquement, tout coulisse bien, les ressorts ok, etc,  par contre j'ai pas de quoi tester les pressions).

 

Niveau boîte, rien de visible à l'œil par dessous. Je pense donc au convertisseur de couple qui serait HS (ça crisse un peu par moment quand j'avance ou recule dans le garage, pas bon signe non plus.

 

La question qui tue: peut on déposer la boite de vitesse sans démonter le moteur sur ce modèle ? Audi Q7 4L 4.2 FSI de 2008, BVA Asin 09D.

La doc indique de déposer l'ensemble moteur boite. Ça ne m'arrange pas, j'ai pas la place dans le garage. Et en fouillant sur le net je ne trouve pas d'infos à ce sujet.

Si on peut déposer la boite seule, je tenterai de changer le convertisseur de couple. Sinon, c'est foutu 😒

 

Pensez vous qu'un convertisseur de couple qui glisserait, pourrait générer cette erreur 17105 sur capteur G195 ? Aucune erreur sur le convertisseur avec VCDS.

 

Merci d'avance à ceux qui liront et pourrons m'aider.

 

Excellente journée. 

20241109_120821.jpg

20241109_142424.jpg

20241109_143138.jpg

Posté(e)

Hello la polynésie :) pas de chance avec cette caisse. En ce qui concerne la dépose boite je pense que c'est faisable mais à mon avis galère par en-dessous sans pont ou fosse.

Sinon au vu de la limaille (quand même pas mal) tout doit être pollué. (convertisseur , pompe a huile ,radiateur etc...)  Elle vient forcement de quelque part ? :( 

1.-  Le convertisseur ne glisse pas en marche AR non ? donc pourquoi il glisserait en marche AV ?

2.- Si la pression de la pompe était trop basse tu aurais une erreur non ? 

Je suspecte un problème du cote de l'unité hydraulique 

Peux-tu actionner N91 (embrayage a prise directe) via VCDS ?

Bon courage

 

N91.JPG

  • Aime 1
Posté(e)

Merci de ton retour panda 67,

J'ai revidangé la boite, je dois reprendre le câblage du G195, le capteur est neuf donc c'est forcément le câblage qui merde...

Je garde cette idée de tester N91 en tête après avoir tout remonté, merci 👍

Je pense que je vais aussi vidanger le radiateur, le gars le fait dans cette vidéo (faut être 2...), voir à la 18eme minute:

https://youtu.be/FFglJVcmF6o?si=Hx2-Bi2HoF6Q-ooe

 

Posté(e) (modifié)

Hello Philippe

Le n91 bloquerait  l'embrayage mécaniquement c'est simplement pour te dire  que cela ne vient pas du convertisseur. (Marche AR  5 et 6  OK)

Le capteur n'est à mon avis pas HS ni le faisceau parce que comme tu l'as mis sur le descriptif la boite prendrait le capteur ABS comme référence à la place  et se mettrait en mode dégradée mais avancerait quand même.

Je pense a un actionneur/ solénoïde  (platine hydraulique)  ou surement au vu de la limaille  à un frein ou embrayage multidisque HS.

Mais tout cela reste a vérifier .

Dan

 

 

 

   

Modifié par Panda_67
  • Aime 1
Posté(e)

OK, je vais creuser de ce côté et redémonter N91.

Pour vérifier partie interne de la boite et les disques c'est plus compliqué, mais je regarderai si je peux voir quelque chose par dessous...

Merci pour tes explications 👍

Je ferai un retour.

  • 3 semaines plus tard...
Posté(e)

Salut Dan,

 

J'ai tout redémonté, nettoyé et contrôlé chaque solénoïde avec du 12v (tous ok, et physiquement ils claquent bien en 12V, et au niveau des résistances tout est ok).

J'ai toujours 0,9Moms sur G195, malgré que la doc indique qu'il doit faire 5Mohms. Mais à priori il fonctionne (en tout cas il envoie un signal).

Pas de limaille cette fois, et le planétaire tourne librement (je l'ai poussé avec un tournevis, rien de notable, ça tourne librement....).

 

Je t'avais dis que ça fonctionnait bien en R, ce n'est plus le cas, elle plante aussi en R, comme en marche avant désormais.

Mon huile BVA serait elle en cause ? MINERVA MATIC 6, le fournisseur m'a montré le site du fabricant qui indique qu'elle va bien dans cette BVA... je commence à en douter.

 

J'ai fait des captures des mesures ampèremétriques des solénoïdes avec VCDS, c'est très anarchique... beaucoup d'incohérences:

N283 n'apparait pas, il est bon tout le temps...

 

Ici je passe de R à N, puis D (les vitesses, c'est la voiture qui choisit toute seule, elle fait comme elle veut...):

En rouge les incohérences sur les solénoïdes (il devraient être à la valeur opposée).

N91 ci dessous devrait être à 0,980A en 5 ou en 3.

N90 devrait être à 1,000A en 5.

N93 devrait être à 0,740A en 1)

Notons que N93 devrait être soit à 0,980, soit à 0,740. J'ai noté en orange qu'il était en valeur intermédiaire (0,830 à 0,870). ça me parait pas normal... à moins que ce soit progressif ?

Lorsqu'elle est en prise, on note que le "converter slip augmente", voir en vert ci dessous. Normal donc.

G195 a l'air de fonctionner...

 

 

 

Position levier de vitesse R R R N D D D D
Vitesse N° R R R 0 1H 5H 3H 1H
Réaction de la voiture aucune prise EN PRISE EN PRISE aucune prise aucune prise aucune prise EN PRISE 1 SECONDE aucune prise
G195 (t/min) 0 30 90 0 0 0 0 0
Speed (via G195 km/h) 0 1 10 0 0 12 11 0
                 
                 
N91 control 0,200 0,190 0,200 0,200 0,200 0,200 0,200 0,200
Torque Converter slip (/min° 23 605 752 1 1 -15 44 42
N92 control 0,990 0,990 1,000 1,000 0,100 1,000 0,100 0,100
N282 control 0,990 0,990 1,000 1,000 1,000 0,100 0,990 1,000
N90 control 0,100 0,100 0,100 1,000 1,000 0,100 0,990 1,000
N93 control 0,880 0,880 0,870 0,980 0,980 0,830 0,860 0,830

 

Autres séries de mesure:

 

Position levier de vitesse D D D D D D
Vitesse N° 1H 5H 5M 5H 3H 1H
Réaction de la voiture aucune prise aucune prise aucune prise EN PRISE 1 SECONDE aucune prise aucune prise
G195 (t/min) 0 0 0 0 0 0
Speed (via G195 km/h) 0 21 66 21 0 15
             
             
N91 control 0,190 0,190 1,000 0,190 0,200 0,200
Torque Converter slip (/min° 7 121 4 121 11 19
N92 control 0,100 0,990 0,990 0,730 0,100 0,100
N282 control 1,000 0,100 0,100 0,730 0,990 1,000
N90 control 1,000 0,100 0,100 0,100 0,990 1,000
N93 control 0,980 0,820 0,820 0,730 0,730 0,850

 

 

Autres séries de mesure:

 

Position levier de vitesse R R R
Vitesse N° R R R
Réaction de la voiture aucune prise EN PRISE aucune prise
G195 (t/min) 0 0 0
Speed (via G195 km/h) 7 7 12
       
       
N91 control 0,200 0,200 0,200
Torque Converter slip (/min° -9 573 1
N92 control 1,000 0,990 0,990
N282 control 1,000 0,990 0,990
N90 control 0,100 0,100 0,100
N93 control 0,870 0,880 0,880

 

Autres séries de mesure:

Position levier de vitesse S S S
Vitesse N° 1H 1H 5H
Réaction de la voiture aucune prise EN PRISE EN PRISE
G195 (t/min) 0 0 60
Speed (via G195 km/h) 0 0 2
       
       
N91 control 0,200 0,200 0,200
Torque Converter slip (/min° 19 557 1318
N92 control 0,100 0,990 1,000
N282 control 1,000 0,710 0,100
N90 control 1,000 0,100 0,100
N93 control 0,970 0,700 0,720

 

Autres séries de mesure:

 

Position levier de vitesse R R R N S S S S
Vitesse N° R R R 0 1H 5H 3H 1H
Réaction de la voiture aucune prise EN PRISE EN PRISE aucune prise aucune prise EN PRISE aucune prise aucune prise
G195 (t/min) 0 60 0 0 0 0 0 0
Speed (via G195 km/h) 16 1 0 0 0 0 0 14
                 
                 
N91 control 0,200 0,200 0,200 0,200 0,200 0,200 0,200 0,200
Torque Converter slip (/min° -2 492 680 1 6 -9 11 5
N92 control 1,000 1,000 0,990 1,000 0,990 1,000 0,100 0,100
N282 control 1,000 1,000 0,990 1,000 0,990 0,100 0,990 1,000
N90 control 0,100 0,100 0,100 1,000 0,100 0,100 0,990 0,990
N93 control 0,750 0,880 0,880 0,980 0,780 0,790 0,730 0,900

 

Autres séries de mesure:

Position levier de vitesse S P
Vitesse N° 5H 0
Réaction de la voiture EN PRISE aucune prise
G195 (t/min) 30 0
Speed (via G195 km/h) 1 0
     
     
N91 control 0,200 0,200
Torque Converter slip (/min° 798 20
N92 control 1,000 0,990
N282 control 0,100 0,990
N90 control 0,100 0,990
N93 control 0,730

0,980

 

Donc est ce que le TCM envoie des mauvaises valeurs au piano de solénoïdes ?

Ou est ce que les solénoïdes sont HS et ne consomment pas comme elles devraient ?

A priori la boite n'est pas à remettre en cause mécaniquement, n'est ce pas ? C'est une histoire entre le TCM et les solénoïdes ?

 

J'ai fait une vidéo, les mesures ci dessus à env. 10min... (après l'avoir montée sur youtube, la qualité de la vidéo ne permet pas de lire les valeur VCDS, d'ou les tableaux ci dessus).

 

Hâte de savoir ce que tu en penses. Je ne sais plus quoi faire...

Merci encore :-)

 

Excellent weekend.

Philippe

 

Posté(e) (modifié)

Hello Philippe

Très beau tableau, tu ne serais pas dans  les stats par hasard ?:) .

Perso je reste sur un problème mécanique pourquoi ? Parce que dans tous les cas de figure (électronique ou logiciel, manque de signal , vanne HS , levier de sélection etc ...  la boite se met toujours en mode dégradé  ou au moins en 3ieme vitesse ) . 

Comme tu dis manque de pression ou un des embrayages multidisques  ou freins , la limaille ne me plait pas encore une fois.

Une huile pas adaptée n'empêcherait pas la boite de fonctionner à peu près surtout neuve a froid. (Arrête de faire des vidanges ca revient cher AP-Smiles_u1F609.png) ...

Par contre les capteurs de pressions sont en tout ou rien on/off et contrôlent en fait les embrayages et ne permettent donc pas de mesurer la pression via VCDS. 

Je te joints le manuel de réparation de la boite en anglais .

 

Pas de spécialiste boite auto  par chez toi pour avoir un autre avis ?

Sinon tes 5 MO tu mesures aux bornes du capteur débranché  je suppose ?

Tu peux vérifier les résistances des solénoïdes il y a les valeurs dans la doc .

Bon courage et encore bon WE

   

09D.pdf

Modifié par Panda_67
  • Aime 1
Posté(e)

Salut Dan,

 

Merci de ton retour rapide.

0,9 Mohms aux bornes du capteur débranché, même valeur sur la prise arrivant au TCM.

Les résistances des solenoides sont bonnes. Mesurées 2 fois, démontées et jusqu'aux bornes du TCM, RAS.

Effectivement, je vais voir si un spécialiste peut m'aider, pas facile à trouver à Tahiti 😅.

 

Merci encore pour tes conseils.

A bientôt.

 

  • 3 mois plus tard...
Posté(e)

Hello,

 

J'en suis toujours au même point avec ma boite de vitesse qui ne fonctionne pas... AP-Smiles_u1F61E.png

Ci joint une vidéo, un bruit de crissement lorsque j'accélère, ça me fait penser au convertisseur de couple de la Boite, ça semble provenir de sous le moteur donc au niveau de l'accouplement moteur boite... si quelqu'un pense savoir ce que c'est ou peut confirmer, ça m'intéresse.

Merci.

 

 

 

 

Posté(e)

Edit J'ai ma réponse, c'est bien le convertisseur de couple...

 

 

Créer un compte ou se connecter pour commenter

Vous devez être membre afin de pouvoir déposer un commentaire

Créer un compte

Créez un compte sur notre communauté. C’est facile !

Créer un nouveau compte

Se connecter

Vous avez déjà un compte ? Connectez-vous ici.

Connectez-vous maintenant
×
×
  • Créer...